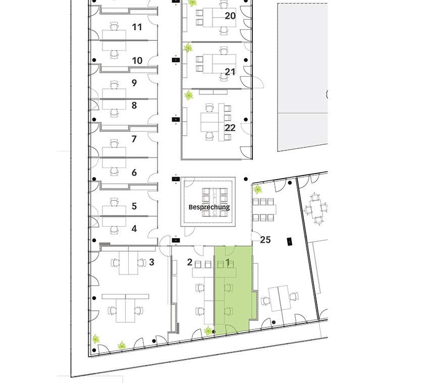
Büro 1 im 1. OG

Typ:
Kleinbüro
Ausrichtung:
Westen
Ebene:
1. OG
Bürofläche:
25,28 m²
Verfügbarkeit:
ab 01.06.2026
Nettomiete:
550,00 Euro
Bewirtschaftungskosten:
96,06 Euro

Bild 1

Bild 2

Plan

Beschreibung

Kleinbüro im SOHO Innsbruck

Für das Ein-Frau- / Ein-Mann-Start Up, oder für die Niederlassung mit geringem oder kurzfristigem Raumbedarf empfehlen wir die designten Kleinbüros in den open office-Strukturen.

Mieten Sie genau die Bürogröße, die Sie auch benötigen – von 10 m² bis 70 m². Die Büros sind sowohl architektonisch als auch in puncto Ausstattung dem Erscheinungsbild des Gesamtgebäudes angepasst und hochwertig. Beim Ausbau wurde nicht nur Wert auf Qualität sondern auch auf Architektur gelegt und sehr viel mit Glas gearbeitet (natürlich unter Bedachtnahme auf Schallschutz).

Alles schon da:

* kostenlose Nutzung vom technisch perfekt ausgestatteten Besprechungsraum
* repräsentativer Empfang
* gemeinsame Nutzung von Sozial- und Sanitärbereich
* …

Besichtigen – Mieten – Einziehen

Kein Vermittlungshonorar, keine Vertragserrichtungskosten; Sie bezahlen lediglich die Mietvertragsvergebührung (Hundertsatzgebühr), sowie drei Bruttomonatsmieten Kaution.

Sie benötigen mehr Platz oder weniger? Ein Bürowechsel war noch nie so einfach!

Ein großer Vorteil beim Gemeinschaftsbüro ist mit Sicherheit die Flexibilität. Die Mietverträge werden auf eine Laufzeit von fünf Jahren mit Vertragsverlängerungsmöglichkeit abgeschlossen. Der Mieter hat von Anfang an die Möglichkeit, unter Einhaltung einer dreimonatigen Frist, zu jedem Monatsletzten zu kündigen.

soho-ueber-uns-vision

Ihr Ansprechpartner

Manuel Hofer
Immobilienmakler

adresse-icon

Fürstenweg 8
6020 Innsbruck

tel-icon

+43 512 12 39 21 31 – 28